본문 바로가기
주메뉴 바로가기
HOME
CONTACT US
SITEMAP
NEWS ENGINEERING
제품안내
회사소개
대표인사말
제품별 안내
회사연혁
오시는길
제품안내
RE EPC, 텐션, 브레이크
FUTEC 이물결점검사
MINK 브러쉬 스프레더롤
JYOHOKU T-die, 피드블록
HELIOS 슬리팅
VETAPHONE 코로나
TOKUDEN 유도가열롤
SIMCO 정전기제거장치
HIKOYAMA 석션롤
KELVA 이물제거
ELTEX 정전인쇄장치
SVECOM 세이프티척
TOYO 핀치롤
KSK 익스펜더롤
BOSCHERT 안전척
MITSUBISHI 픽업, 텐션
FUTEC 이물결점검사
FUTEC 이물결점검사
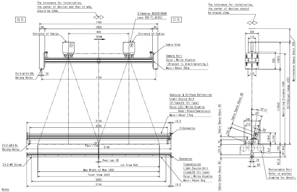
인쇄 필름 검사 장치 (필름, 종이용)
모델명 : EasyMax GR
이물 검사 장치_필름, 종이용
제품 특징
* 검사 화면
목록보기